Cibelli Iniziative Immobiliari dal 1997 protagonista del Real Estate

Ghedi capannone con uffici in vendita

Vendita

GHEDI proponiamo la vendita di un interessante CAPANNONE, completo di uffici funzionali, subito disponibile, adatto ad attività produttive leggere artigianali o di servizio.

L’immobile si presenta in ordine e ben mantenuto, con spazi razionali e facilmente adattabili alle diverse esigente operative.

Gli uffici luminosi e pronti all’uso, ideali per aree amministrative e direzionali.

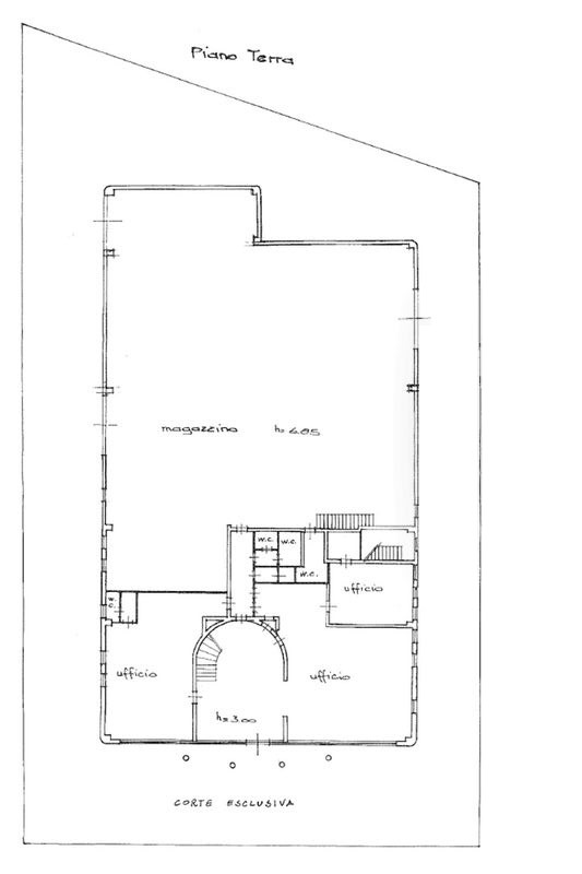
Il capannone, con accessi comodi per carico/scarico, prossimo alle comode arterie stradali, si sviluppa su UNA SUPERFICIE di 2.200 mq., con spazio adibito a ZONA PRODUTTIVA di 580 mq., mentre la superficie UFFICI, disposta su due livelli, è di mq. 937.

Completa la proprietà un’area esterna di mq. 1160.

Cerchi un immobile industriale, un terreno produttivo.

Cibelli broker in the sales of industrial properties.
Cibelli Iniziative Immobiliari www.cibelli.it – info@cibelli.it
Classe Energetica G (82,1 kWh/mca)

Dettagli
Prezzo
605.000 €
Mq
1517
Tipo di immobile
Capannone/Commerciale
Locali
6
Piano
T
Ascensore
-
Riscaldamento
Autonomo Metano
Condizionamento
-
Classe energetica
G (82.1 kWh/mca)
Box
-
Posto auto
-
Giardino
-
Planimetria
Planimetria
Planimetria
Planimetria aggiuntiva
Richiedi informazioni

    Cerca il tuo immobile

    Ricerca avanzata

    Valuta il tuo immobile
    La scelta giusta è l'inizio di un buon risultato
    Vedi anche altre
    Proposte immobiliari
    Capannone in affitto a Flero
    Affitto
    Palazzolo sull'Oglio immobile commerciale in vendita
    Vendita
    Periferia sud capannone con cessione ramo d'azienda
    Vendita
    Capannone in affitto a Flero
    Affitto
    Palazzolo sull'Oglio immobile commerciale in vendita
    Vendita
    Periferia sud capannone con cessione ramo d'azienda
    Vendita
    Capannone in affitto a Flero
    Affitto
    Palazzolo sull'Oglio immobile commerciale in vendita
    Vendita
    Periferia sud capannone con cessione ramo d'azienda
    Vendita
    RICHIEDI INFORMAZIONI
    Apri la chat