Cibelli Iniziative Immobiliari dal 1997 protagonista del Real Estate

Palazzolo sull'Oglio negozio in vendita

Vendita

Negozio/Ufficio in vendita a Palazzolo sull’Oglio.

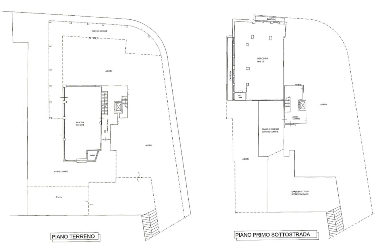
Il locale commerciale, molto luminoso per le sue belle quattro vetrine, ha una superficie di 110 mq.

L’ufficio, è un open space con servizio, collegabile ad un sottonegozio di 160 mq. con una altezza di mt.3,20.

Il locale potrebbe avere finalità e destinazione diversa quale studio professionale/ laboratorio/ magazzino ed è adatto a qualsiasi attività terziaria con un ingresso indipendente adatto per carico / scarico.

Per informazioni o per fissare un appuntamento contattaci: spazi cosi versatili non restano disponibili a lungo.

Il prezzo di vendita molto interessante è di 100.000€

Cibelli Iniziative Immobiliari www.cibelli.it – info@cibelli.it.
Classe energetica G – IPE 314,77

Dettagli
Prezzo
100.000 €
Mq
210
Tipo di immobile
Negozio
Locali
2
Piano
T
Ascensore
Si
Riscaldamento
Autonomo Metano
Condizionamento
-
Classe energetica
G (314.77 kWh/mca)
Box
-
Posto auto
-
Giardino
-
Planimetria
Planimetria
Richiedi informazioni

    Cerca il tuo immobile

    Ricerca avanzata

    Valuta il tuo immobile
    La scelta giusta è l'inizio di un buon risultato
    Vedi anche altre
    Proposte immobiliari
    Brescia nord via Trento negozio in vendita
    Vendita
    Brescia zona ring immobile commerciale a reddito
    Vendita
    Bagnolo Mella stabile commerciale in vendita
    Vendita
    Brescia nord via Trento negozio in vendita
    Vendita
    Brescia zona ring immobile commerciale a reddito
    Vendita
    Bagnolo Mella stabile commerciale in vendita
    Vendita
    Brescia nord via Trento negozio in vendita
    Vendita
    Brescia zona ring immobile commerciale a reddito
    Vendita
    Bagnolo Mella stabile commerciale in vendita
    Vendita
    RICHIEDI INFORMAZIONI
    Apri la chat