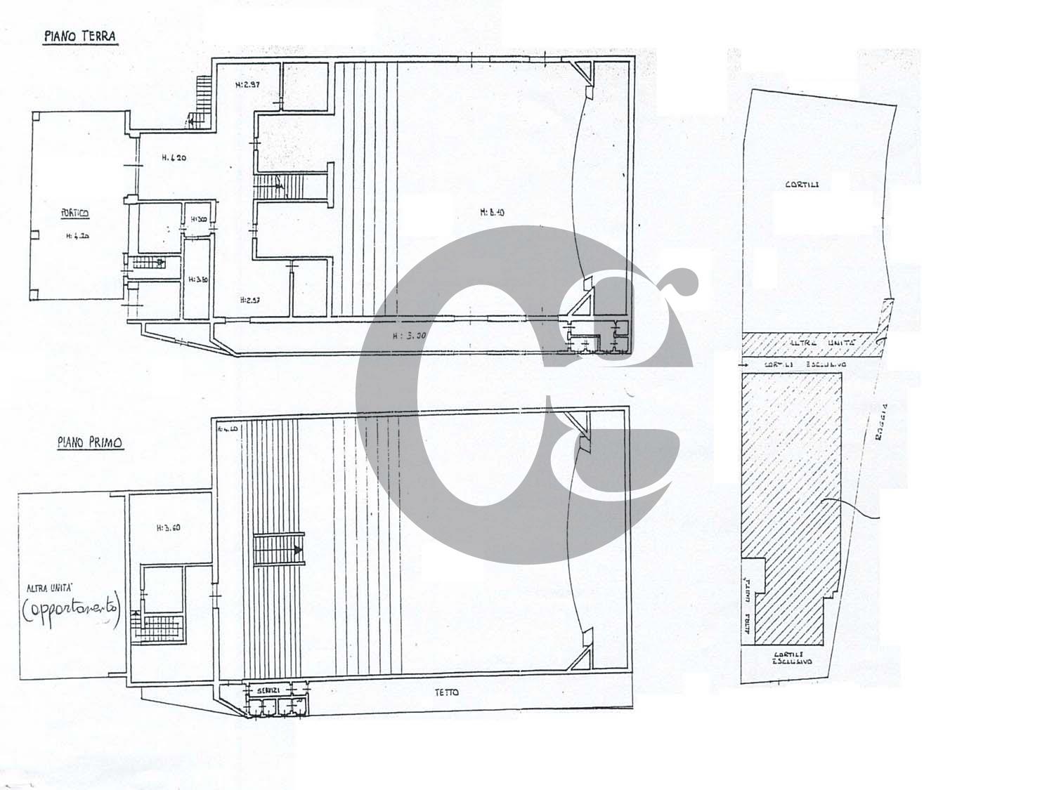
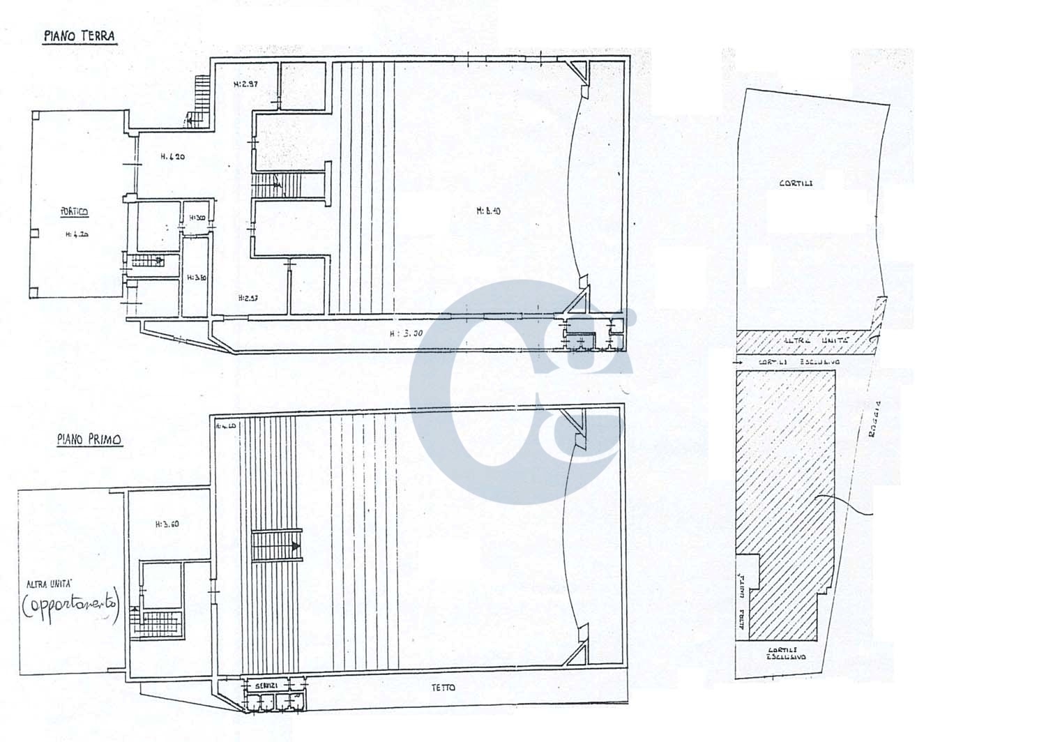
A Bagnolo Mella, periferia sud di Brescia, in ottima posizione, proponiamo la vendita di un interessante STABILE COMMERCIALE da riconvertire.
L’edificio, prospiciente il centro storico, ha una CUBATURA di 6.472 mc. con destinazione mista residenziale/ commerciale.
L’immobile, con una bella area parcheggio, potrebbe essere interessante per un polo sanitario.
Cibelli Iniziative Immobiliari www.cibelli.it – info@cibelli.it.
Immobile non soggetto all’obbligo di certificazione energetica.